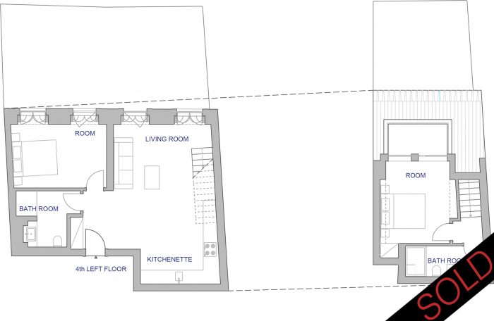
T2
Area: 84m2
Bedrooms: 2
Balcony with panoramic view
4th Floor and 5th Floor
Lobby / Living Room / Bedrooms / Corridors
FlLOORING: Solid wood flooring in TAUARI wood with lacquered finishing.
WALLS: Matt paint on plaster.
Kitchen
FLOORING: Solid wood flooring in TAUARI wood with lacquered finishing.
WALLS: Matt paint on plaster;
RECER Porto tiles, or equivalent, between the kitchen cabinets.
CABINETS: White MDF lacquered with counter in stone.
APPLIANCES: Oven / cooker / fridge / kitchen hood from Zanussi brand or equivalent and electric water heater.
Sanitary Installations
FLOORING: Cerev tiles or equivalent.
WALLS: Painting matt pain on plaster;
New Terra Cota tiles or equivalent.
SANITARY WARE: SANINDUSA or equivalent.
More
INTERIORS DOORS: Wood structure, white lacquered.
WINDOWS: White PVC windows, double glazing.
AIR CONDITIONING: Multisplit system.
Common Parts
Video intercomsystem
Lift
- + Typology
-
T2
Area: 84m2
Bedrooms: 2
Balcony with panoramic view
4th Floor and 5th Floor - + Finishes
-
Lobby / Living Room / Bedrooms / Corridors
FlLOORING: Solid wood flooring in TAUARI wood with lacquered finishing.
WALLS: Matt paint on plaster.
Kitchen
FLOORING: Solid wood flooring in TAUARI wood with lacquered finishing.
WALLS: Matt paint on plaster;
RECER Porto tiles, or equivalent, between the kitchen cabinets.
CABINETS: White MDF lacquered with counter in stone.
APPLIANCES: Oven / cooker / fridge / kitchen hood from Zanussi brand or equivalent and electric water heater.
Sanitary Installations
FLOORING: Cerev tiles or equivalent.
WALLS: Painting matt pain on plaster;
New Terra Cota tiles or equivalent.
SANITARY WARE: SANINDUSA or equivalent.
More
INTERIORS DOORS: Wood structure, white lacquered.
WINDOWS: White PVC windows, double glazing.
AIR CONDITIONING: Multisplit system.
Common Parts
Video intercomsystem
Lift
- + Flats
